この物件について: 賃貸物件 、礼金なし
★おすすめ情報:日当たり良好★
【物件番号】
琵琶湖 E
月額賃料:4.0万円
| 所在地 | 青森県十和田市元町東五丁目2-30 |
|---|---|
| 学 区 | 東小/東中 |
| 敷 金 | 1 ヶ月 | 礼 金 | 仲介料 | 1 ヶ月 |
|---|
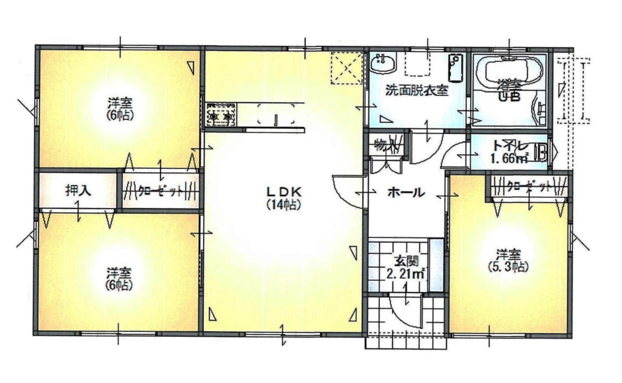
| 管理費・共益費 | 間取り | 1LDK / 46.9 m² | 築年数 | H4年 |
|---|

| 詳細間取り | LDK14帖、洋6帖、押入、洗面化粧台、脱衣所、ユニットバス、水洗トイレ |
|---|
| 入居予定日 | 即日入居可 | 取引態様 | 仲介 |
|---|---|---|---|
| タイプ・構造 | 木造2階建 | 総戸数 | 6戸 |
| 階建 | 2 階 / 2 階建 | 建物向き | 南 |
| 住宅保険 | 有 | 駐車場 | 有(1台) |
| 交通 | 元町東バス停まで徒歩8分 |
|---|---|
| 設備 | インターフォン ウォシュレット ストーブ 照明器具 エアコン 駐車場 |
| その他設備 | アンテナ、ブースター、プロパンガス、ホーローキッチン、ユニットバス、下駄箱、押入、洗濯機スペース、洗面台、ガスボイラー、プロパンガス、火災警報器、FFストーブ自動給油 | ||
|---|---|---|---|
| 備考 | 駐車場2台目可(月額3,000円) | ||